

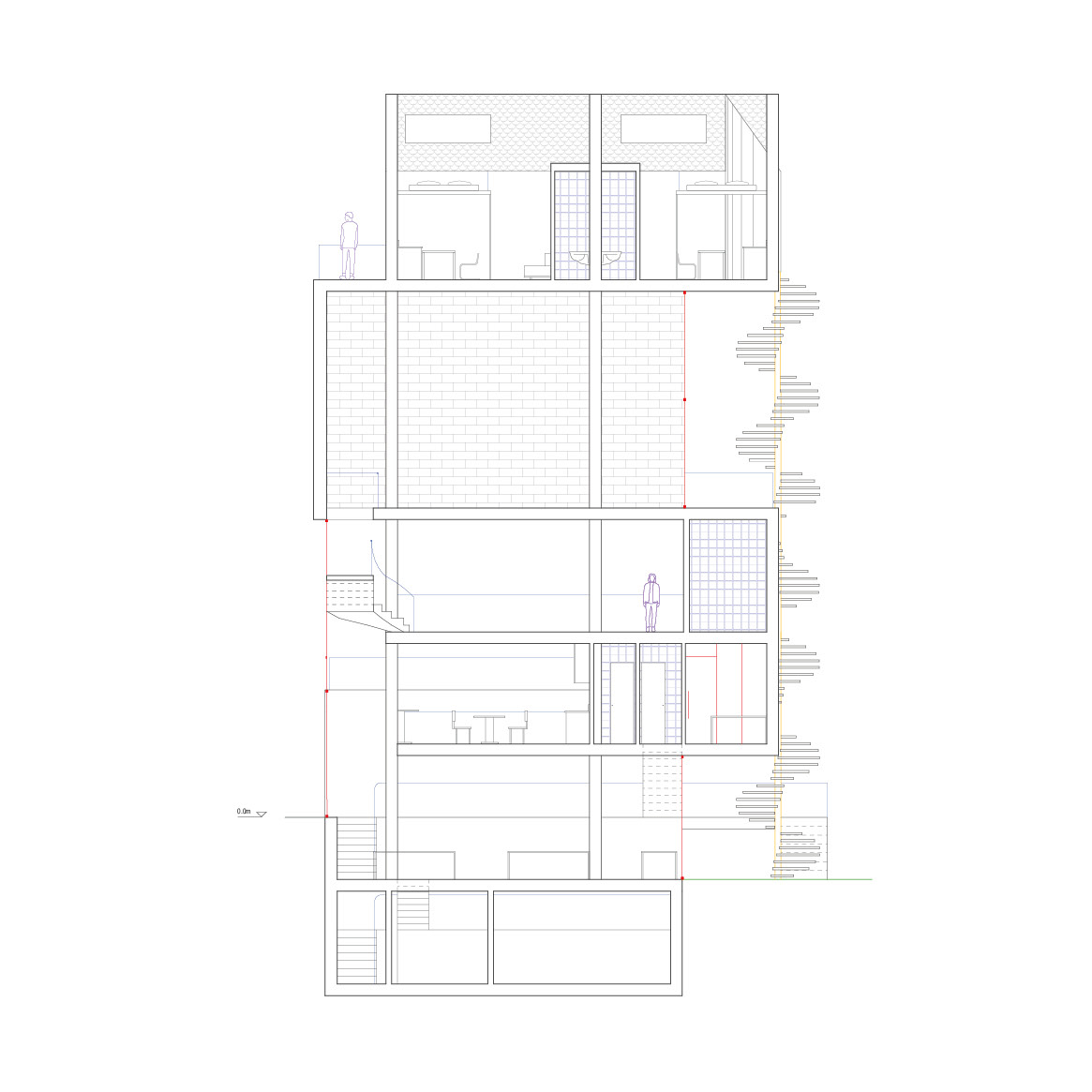
What to wear is a conscious choice conditioned by the awareness of one’s image reflected through the eyes of others. We experience fashion daily by walking around cities and buildings, seeing and being seen, exposing our choices, making statements or refusing to make one. The new Antwerp Fashion Lab is an open-stage tool, visible and available to the fashion district in Antwerp. The program includes a café, ateliers, workshops, kitchen, office, showroom, and living area for the use of fashion students.
The ateliers are located 1.5 meters below street level. The communal kitchen, workshops, and lounge area are divided into three open levels. The ateliers on the bottom form the foundation for all the other functions, opening outward so passers-by can observe not only the production process but also its progression upwards to the showroom, which is completely closed off from the street. At the very top of the building, in the tiny-house attachment, are two studio apartments and a common rooftop garden.


Introduction to Design - Summer Semester 2018 / IRGE - Institut für Raumkonzeptionen und Grundlagen des Entwerfens / Supervised by Prof. Dipl. -Ing. Markus Allmann, Dipl. -Ing. Kyra Bullert, Kyril Keller / University of Stuttgart